101 Blue Bird Lane, West Point, MS 39773

101 Blue Bird Lane, West Point, MS 39773
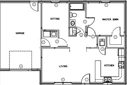
Spacious one bedroom, one bath apartment. Lovely master bedroom has walk-in bath.
This is a common note that can be displayed on all properties but controlled from one simple option.
Immerse yourself in the captivating ambiance of our properties. Book a personalized tour to explore the exquisite beauty and unique features of our property.
Our knowledgeable staff will guide you through the property, answering any questions you may have.
Owning a home is a keystone of wealth… both financial affluence and emotional security.
Suze Orman
John Doe
on said
This is a sample comment. We have been extremely pleased with your attentiveness, communication, honesty and advice throughout the entire process. Selling a house is a stressful occurrence for anyone and you have helped to make it as smooth as possible for us. We feel that you truly go beyond the general duties of a real estate agent with thorough follow ups, reporting and always being ‘on top’ of potential buyers.